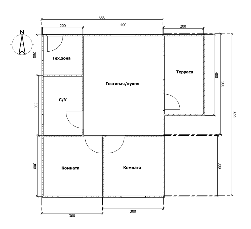
Дачный дом «Одноэтажный с комфортом»

- Размеры: 56 м2 – площадь застройки; 48 м2 – площадь жилая
- Высота помещения: 2,5 м
- Фундамент: винтовые сваи 16 шт., длина 3,2м, диаметр 76мм
- Обвязка винтовых свай: брус сечением 150мм*150мм*4000мм
- Лаги пола: доска сечением 50мм*150мм*4000мм
- Силовой каркас: доска сечением 50мм*100мм*4000мм
- Кровля: односкатная стропильная система, покрытая металлочерепицей «Монтеррей» со всеми доборными элементами
- Водосточная система: Verat пластиковая
- Фасад: сайдинг виниловый «Grand Line» со всеми доборными элементами
- Внутренняя отделка стен/потолка: ГВЛВ ПК 10мм Knauf Суперлист / OSB 9мм
- Пол: черновая доска + OSB/фанера
- Утепление стен, потолка и пола: 100мм
- Ветровлагозащита и пароизоляция утеплителя
- Окна: пластиковые поворотно-откидные с противомоскитными сетками и подоконниками
- Дверь межкомнатная: массив дерева с фурнитурой
- Дверь входная: утепленная металлическая Российского производства
- Защита от грызунов: металлическая сетка
Все деревянные элементы ограждения террасы шлифованные с покраской
Цена: 1 295 000 руб.
Напишите нам и мы поможем подобрать проект для вас!




