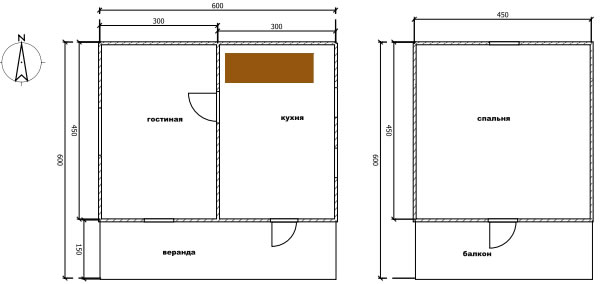
Дачный дом «Комфорт»

- Размеры: 36 м2 – площадь застройки; 47 м2 – площадь жилая
- Высота помещений: 2,5 м/2,2м
- Фундамент: винтовые сваи 12 шт., длина 3,2м, диаметр 89мм
- Обвязка винтовых свай: брус сечением 150мм*150мм*4000мм
- Лаги пола: доска сечением 50мм*150мм*4000мм
- Силовой каркас: доска сечением 50мм*100мм*4000мм
- Кровля: стропильная система мансардной крыши, покрытая металлочерепицей «Монтеррей» со всеми доборными элементами
- Водосточная система: Verat пластиковая
- Фасад: сайдинг виниловый «Grand Line» со всеми доборными элементами
- Внутренняя отделка стен/потолка: ГВЛВ ПК 10мм Knauf Суперлист / OSB 9мм
- Пол: черновая доска + OSB/фанера
- Утепление стен, потолка и пола: 100мм
- Ветровлагозащита и пароизоляция утеплителя
- Окна: пластиковые поворотно-откидные с противомоскитными сетками и подоконниками
- Дверь входная: утепленная металлическая Российского производства
- Дверь межкомнатная: массив дерева с фурнитурой
- Дверь балконная стеклянная ПВХ
- Лестница: деревянная шлифованная
- Защита от грызунов (металлическая сетка)
Все деревянные элементы ограждения террасы шлифованные с покраской
Цена: 1 710 000 руб.
Напишите нам и мы поможем подобрать проект для вас!




